開き戸(片開きドア) | 引き戸 | 製造・出荷までの流れ
特徴
イラックスが自信をもってお届けする木製のⅩ線防護ドア・枠になります。
木材は、スプルース柾梚の乾燥剤(含水率 15%以下)を使用しており、戸当たり部からのⅩ線の漏洩を防ぐため、図面通り扉横手部の枠木材に鉛板を埋め込んでいます。
フラッシュ扉の中骨には、米ヒバ材の乾燥剤(含水率 15%以下)を使用しており、要所にはスティールパイプを配し、ペーパーコアー構造になっています。
両サイドの合板厚には、6.5mm以上の複合板を採用。
製作は熟練した建具職人が行い、蝶番、鍵取付加工を施し、現場取付の手間を軽減しています。

医療用 X線防護 木製ドア(イラックス製)- 開き戸(片開き)
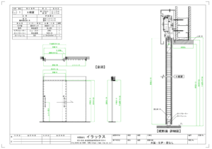
開き戸(片開き)・窓あり(イラックス製) 医療用 X線防護ドア - 参考図面

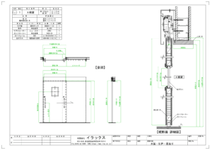
開き戸(片開き)・窓なし(イラックス製)医療用X線防護ドア - 参考図面

⚫︎ 扉表面仕上材も各種選択できます。
ポリ合板・シナ合板・メラミン化粧版・アルミ板・スティール板・クロス下地ラワン合板
⚫︎ 扉開閉形状は開戸を始め、引き戸(ハンガー自閉式)、引き戸(レール戸車手動式)に対応できます。
医療用 X線防護 木製ドア(イラックス製)- 引き戸
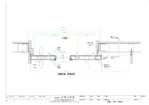
引き戸・窓あり(イラックス製)医療用X線防護ドア - 参考図面


引き戸・窓なし(イラックス製)医療用X線防護ドア - 参考図面



製造・出荷までの流れ
