引戸 | 開き戸(片開きドア) | 観察窓 | 製造・出荷までの流れ
医療用 X線防護 アルミドア(イラックス製)- 引き戸
特徴
医療用 X線防護ドアの引戸タイプで自閉式ハンガータイプ仕様になり、楽に開閉できます。
内部を木質系にして軽量化を図るとともに、要所にスティール材を配し、扉の反りを防ぎ美しく仕上げました。
(1.5pb 当量寸法 800 x 2000 重量約45kgで初期開放力2kgf)
様々なご要望にお応えできるよう、豊富なバリエーションをそなえた扉で、寸法、形式など自由に選択いただけます。また自動扉に対応できる様アルミ型部材を用意しています。

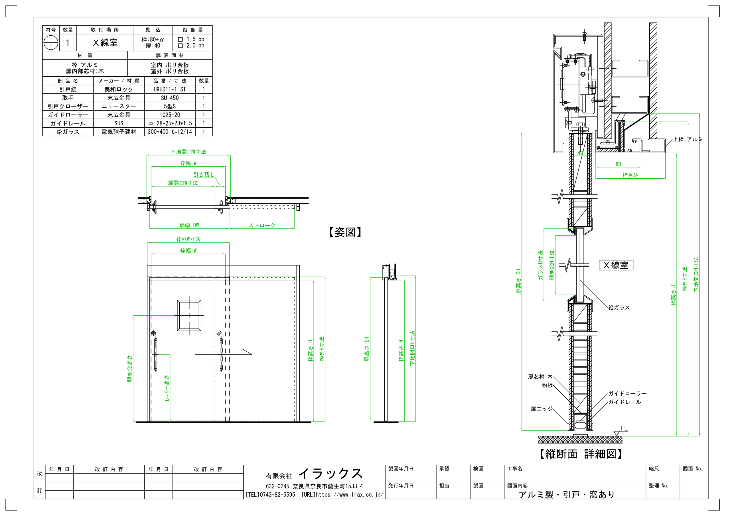
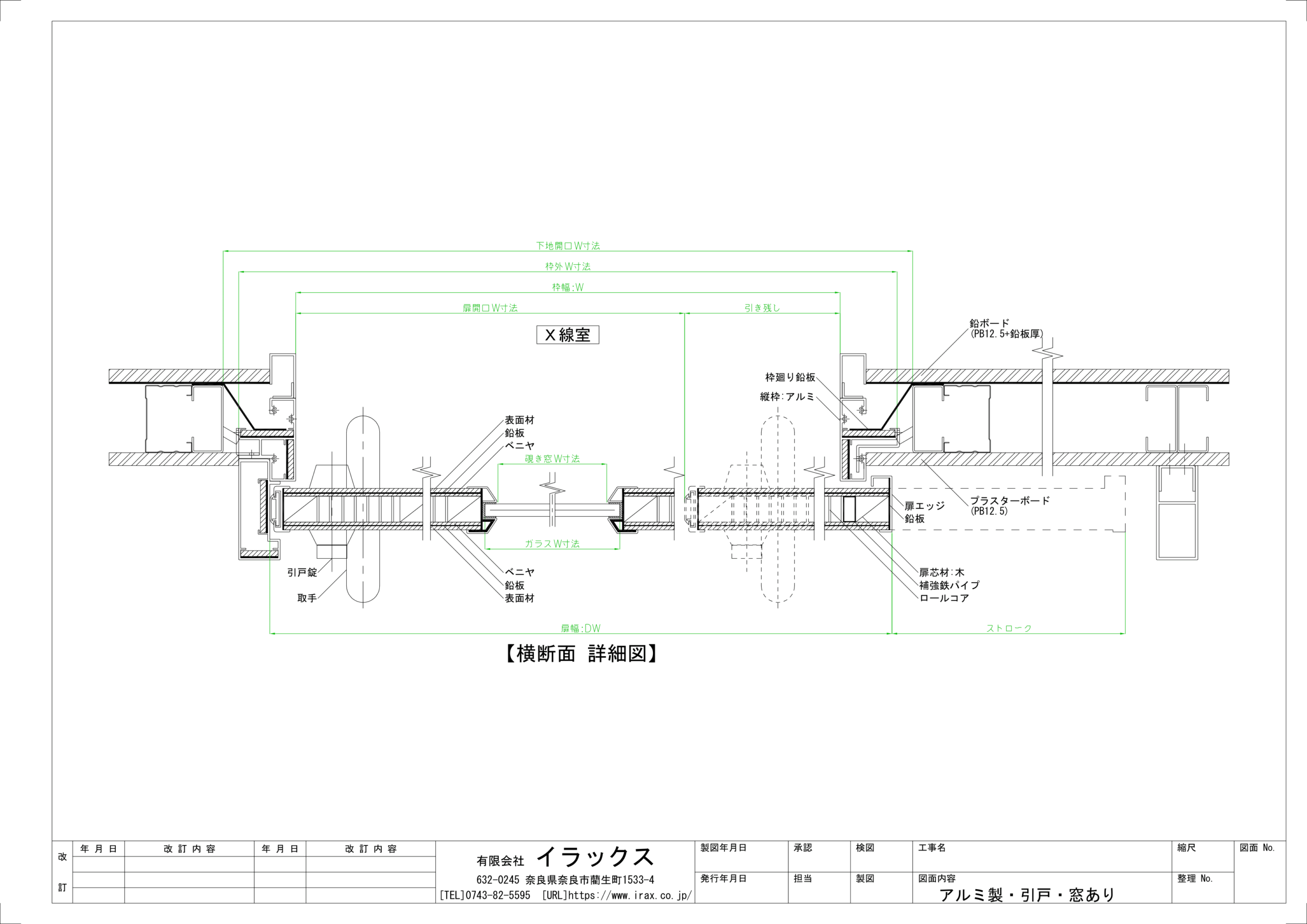
引き戸・窓あり(イラックス製)医療用X線防護ドア - 参考図面


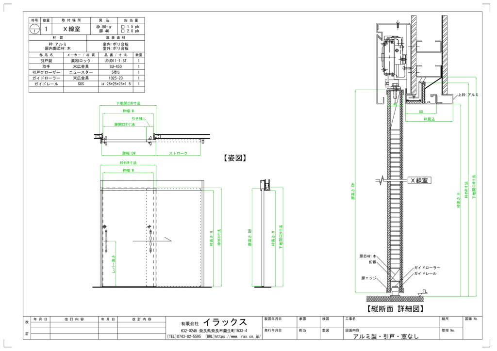
引き戸・窓なし(イラックス製)医療用X線防護ドア - 参考図面



⚫︎ カラー対応できます。
日本塗料工業会色等のジュラクロン焼き付け
木目塗装 アクリル樹脂焼付塗装
⚫︎ 扉表面仕上げ材も各種選択できます。
ポリ合板 シナ合板 メラミン化粧板 アルミ板 スティール版 クロス下地ラワン合板
⚫︎ 用途により、沓摺(下枠)も各種選択できます。
コ型・フラットパーSUSt=6
⚫︎ アルミ額縁付を基準とします。
枠見込み 240mm(80mm 固定 + 160mm)まで形材対応できます。
⚫︎ 扉表面材は、片方 6.5mm以上の厚さを有し、扉内部にはペーパーハニカムコアーを充填しているので堅牢です。
⚫︎ 自閉式(引戸クローザー)なので、扉が開放状態なることを防ぎます。
⚫︎ 引き分け扉にも対応しています。
⚫︎ クローザーケースのみアルミ板曲げとし、各枠部分はアルミ型材になります。
引戸 | 開き戸(片開きドア) | 観察窓
医療用 X線防護 アルミドア(イラックス製)- 開戸
特徴
本製品は、イラックスが開発した医療用 X線防護ドア(開戸)です。
内部を木質系にして軽量化を図るとともに、要所にスティール材を配し、扉の反りを防ぎ美しく仕上げました。
また、お客様の様々なご要望にお応えするべく、従来のアルミシルバー色の枠に加え、木目塗装枠の医療用X線防護ドアも製品化しています。
「医療用ドア」というと冷たい印象のデザインになりがちですが、先進医療を実施されているクリニック様、ぬくもりを求められるクリニック様のご要望にお応えできる仕様となっています。

医療用 X線防護ドア / アルミ 開戸(片開き) 窓あり - 参考図面

一般財団法人 日本建築総合試験所「JIS A 4702」ドアセットの捻り強さ試験合格 ー 2024年6月24日
医療用 X線防護ドア / アルミ 開戸(片開き) 窓なし - 参考図面

一般財団法人 日本建築総合試験所「JIS A 4702」ドアセットの捻り強さ試験合格 ー 2024年6月24日

⚫︎ カラー対応できます。
日本塗料工業会色等のジュラクロン焼き付け
木目塗装 アクリル樹脂焼付塗装
⚫︎ 扉表面仕上げ材も各種選択できます。
ポリ合板 シナ合板 メラミン化粧板 アルミ板 スティール版 クロス下地ラワン合板
⚫︎ 用途により、沓摺(下枠)も各種選択できます。
コ型・フラットパーSUSt=6
⚫︎ アルミ額縁付を基準とします。
枠見込み 260mm(100mm 固定 + 160mm)まで形材対応できます。
⚫︎ 扉表面材は、片方 6.5mm以上の厚さを有し、
扉内部にはペーパーハニカムコアーを充填しているので堅牢です。
下表をご覧ください。表が示す通りイラックス製のアルミ扉は、スティール扉の約2/3の重量を示しています。
| 鉛当量 | 寸法 | 重量 | |
| イラックス製 アルミ扉 (ポリ合板) | 2.0pb 1.5pb | 800 x 2000 800 x 2000 | 63kg 52kg |
| アルミ軽量扉 | 2.0pb | 800 x 2000 | 69kg |
| スティール扉 | 2.0pb | 800 x 2000 | 93kg |
当社比
納期
在庫品のあるシルバー枠、木目塗装枠、ホワイト枠(扉仕上は、ポリ合板とします。鉛当量 1.5pb)は受注後、12営業日後に出荷いたします。
上記の扉枠以外はオーダーになるため、都度お見積りさせていただきます。
オーダー 受注後
日塗工 (25営業日〜30営業日後出荷)
木目塗装(25営業日〜30営業日後出荷)
引戸 | 開き戸(片開きドア) | 観察窓
医療用 X線 観察窓 イラックス製
特徴
本製品は、室内のエックス線を外部に漏洩させることなく観察するためのエックス線防護観察窓です。
四面並行型を基準としていますが、視野が広がる広角型にも対応しています。

⚫︎ カラー対応できます。
日本塗料工業会色等のジュラクロン焼き付け
木目塗装 アクリル樹脂焼付塗装

⚫︎ アルミ額縁付を基準とします。
枠見込み 260mm(100mm 固定 + 160mm)まで形材対応できます。
製造・出荷までの流れ
